"cookieChoices = {};" Tecnologias Sustentáveis: Residêncial Rondolino

Pesquisar este blog

sexta-feira, 2 de dezembro de 2011

Residêncial Rondolino


O Residêncial Rondolino é uma casa de férias de um jornalista e escritor italiano, Fabrizio Rondolino, apaixonado pelo deserto.
O deserto é um bioma com clima muito seco, quente durante o dia e muito frio a noite. Os répteis compõem a fauna e as suculentas, como os cactos, a flora desse ambiente magnífico. A casa foi construída no deserto de Nevada.

A concepção do projeto foi realizada via e-mail e telefone entre o jornalista e o arquiteto responsável Peter Strzebniak. A construção é modular, ou seja pré fabricada. São painéis com encaixes em vigas galvanizadas.
Diga-se de passagem que a constituição da forma, dos usos e da função de uma casa é sempre resultado de um processo sócio-cultural. A disseminação desse tipo de informação contribui para o aumento de pessoas educadas ambientalmente.

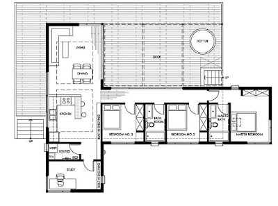
Com layout em T a casa possui 3 dormitórios, 2 banheiros, e é cercada por um deck que faz com que os cômodos façam parte do contexto da natureza do local. Já pensou acordar com a paisagem apresentada na imagem acima? Eu que amo um ambiente natural ficaria maravilhada.

Todo material usado possui certificação ecoeficiente. Exemplo das tintas produzidas por uma tecnologia mais limpa e o piso de bambu, material mais biodegradável e de fácil reflorestamento.
A decoração também possui princípios de sustentabilidade.
O esquema a seguir nos mostra as principais características ecológicas da casa:

1) Um contrapiso com cascalho auxilia na refrigeração e assim mantém uma boa temperatura.
2) Tubos para a refrigerção natural.
3) Painéis de maderia certificada, estruturados.
4) Sistema hídrico para aquecimento ou refrigeração de acordo com a programação.
5) Sistema de sombreamento pra reduzir a refração.
6) Iluminação natural.
7) Reservatório local.
8) Sistema de lixiviação.
9)Portas de vidro que ampliam a iluminação natural.
10) Paisagismo com espécies locais que não necessitam irrigação.

Vale a pena dar uma espiada no site: http://www.nottoscale.com/prefab/index.html

Nenhum comentário:

Postar um comentário